204 m² - Multifunkcionális
Leírás
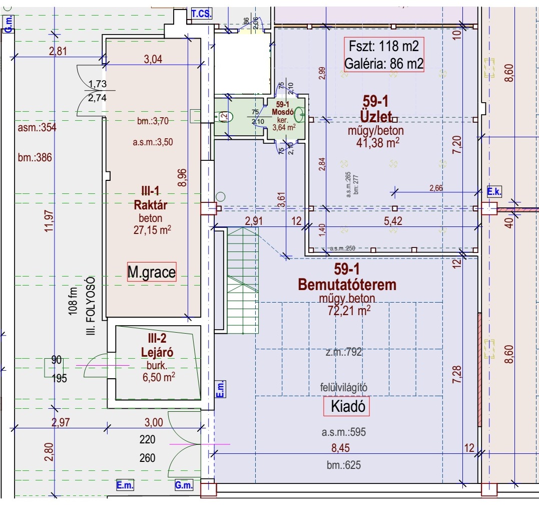
Bemutató teremnek alkalmas kétszintes felülvilágítós tér, kiszolgáló helyiségekkel.
Kiadó felülvilágítós bemutatóterem vagy nagykereskedés az Üzleti központ VIII. épület földszintjén.
Galériás bérlemény, a földszinten bemutatótér és leválasztott háttér üzlet vagy raktár valamint vizesblokk, a galérián leválasztott és nyitott irodák.
Megközelíthető a Szentendrei út felől a 3. kapun keresztül az északi útról vagy a Reményi Ede utca felől a 4. kapun keresztül.
Érezte már, hogy egy jó lokáció megkönnyíti az életét?
Itt minden adott az üzleti tevékenységéhez, sőt még a szabadidő eltöltéséhez is. 500 férőhelyes parkoló, éttermek, kávézók, bio- és gluténmentes pékségek, nyomdák, papír-, írószer, villamosság, ruházat, könyvelőiroda, kommunikációs és média ügynökségek, dizájn és egyéb boltok, képzőművészeti galéria, fotóstúdió és sport. Tömegközlekedve és személygépkocsival is jól megközelíthető. Elképesztő lehetőségek üzleti szinergia kialakítására jól menő cégek között, impozáns környezetben.
Forduljon hozzánk bizalommal! Kollégáink igény szerint állnak rendelkezésére, hogy ideális bérleményt találjon nálunk reális áron.
Telefon: +36309962962
| Azonosító: | PP59-1-204m2 |
| Terület (m2): | 204 |
| Funkció: | Multifunkcionális |
| Állapot: | Igény szerint alakítható |
| Fekvés: | É |
| Akciós: | |
| Kiadva: | |
| Terület: | 120-300 m2 |
| Golipark ajánlatban szerepel: |










